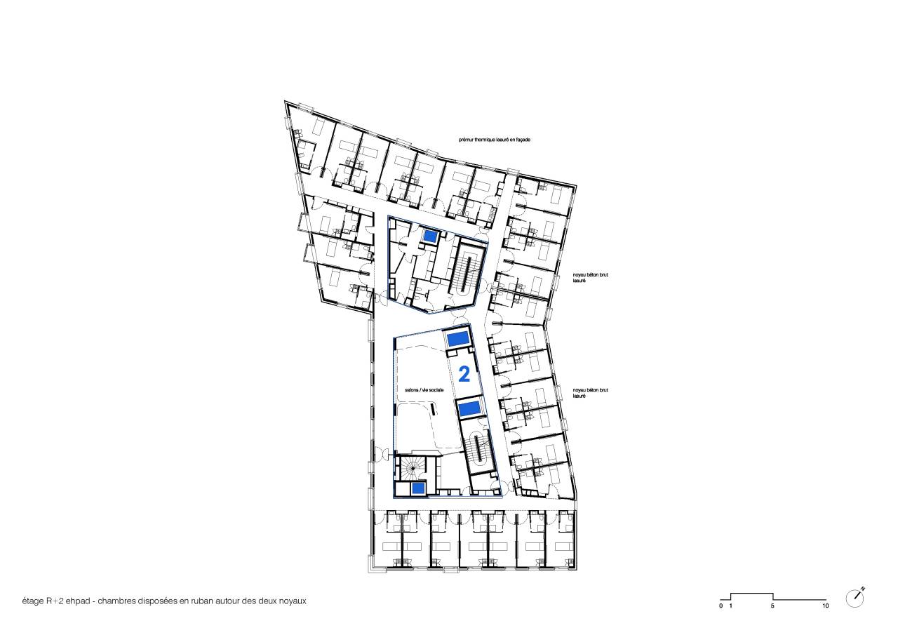
pas de lignes